
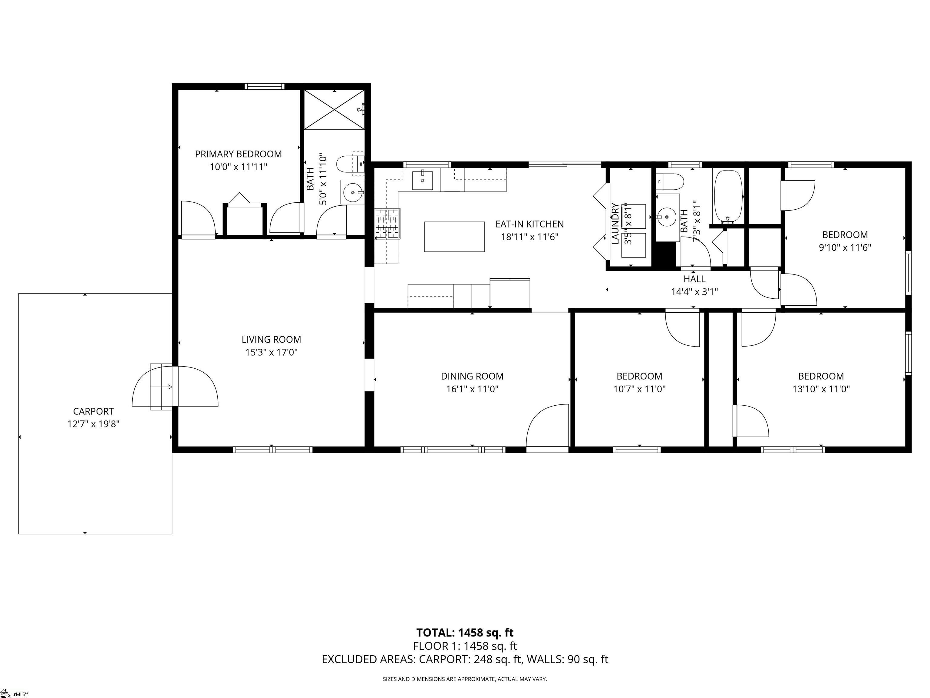
New ListingGreat 4 bedroom 2 full bath ranch home is centrally located between Seneca and Clemson. It has been recently updated and is very well maintained. Kitchen and baths were redone in 2021/22, new vanities, toilets, flooring etc. SS appliances that are new include, gas stove, full bowl kitchen sink, dishwasher, and dryer. Water heater is less than 1 year old. Roof 3 years old. Older part of the house has beautiful hardwood floors. The rest of the house has new luxury vinal plank throughout. There is a 12x16 foot storage shed that conveys with the home. It has built in shelving, a work table and has power. Lights in the house are all updated and are all high energy efficiency. This house is located right off 123, but is located in a quiet residential neighborhood. It has a great yard, nice well established landscaping and is ready for you and your family. Would also be a great rental. Close to the university, plenty of parking etc. You are just minutes from the grocery, shopping and entertainment. This property has something for everybody. It is a comfortable home with an easy open floorplan. Seller has dogs, 2 hour notice is required to get dogs out for showing
| MLS # | 1573778 |
|---|---|
| Listing Type | For Sale |
| Style | House |
| Sub-Type | Resale |
| Status | Contingency Contract |
| Days On Site | 5 |
| Listing Provided By | BuyHartwellLake.com | Katie Tillman |
| Bed(s) | 4 |
|---|---|
| Bath(s) | 2 Total |
| Garage | 2 |
| Car Port | Yes |
| Story(s) | 1 |
| Acreage | 0.39 |
| Property | 902 |
|---|
| State | SC |
|---|---|
| County | Oconee |
| City | Seneca |
| Zip Code | 29672 |
| Area | 060 |
| Community Name | Enchanted Forest |
| School District | Seneca |
| Elementary School | Ravenel |
| High School | Seneca |
| State | SC |
|---|---|
| County | Oconee |
| City | Seneca |
| Zip Code | 29672 |
| Area | 060 |
| Community Name | Enchanted Forest |
| School District | Seneca |
| Elementary School | Ravenel |
| High School | Seneca |
![]() | $219,0002057 Sunset DrSeneca, SC 29672 |